The Paris Pneumatic Clock Network

Gallery opened 12 Dec 2017

Updated: 2 Dec 2024

More on Collins & Wagner mother clock added here
Back to Home PageBack to Museum

In 1879 the Austrian engineer Viktor Antoine Popp and his co-worker Resch demonstrated a system of pneumatic clock synchronisation in the Austro-Hungarian section of the Universal Exposition. It appears the actual inventor was Carl Albert Mayrhofer. The Paris city council granted Popp's Compagnie des Horloges Pneumatiques (CGHP) authorization to install a compressed air network to drive both public and private clocks. It was not a power distribution network but a time distribution network, which synchronised a large number public clocks, in particular those of railway stations, by sending a pulse of air every minute. The pipes ran through the sewers of the city, and the tunnels of the Metro and the RER. (The RER is a commuter rail network serving Paris and its suburbs) Each Popp clock contained a metal bellows which advanced a 60-tooth wheel by one tooth per minute. Operation began in 1880; it is interesting to note that this was a long time after the Paris pneumatic post had opened in 1866.

At the time compressed air was in the air, so to speak, following the extensive use of compressed air for rock drilling in the construction of the Mont Cenis tunnel, which was initially expected to take 25 years but was opened in 1871 after only 14 years following the introduction of pneumatic equipment. (Dynamite was also a help in the later years of construction)

Popp obtained French nationality in 1881. He was later involved in the compressed air power network installed in Paris, and then the Branly-Popp radio system.

Before the contract was made between the Paris municipality and his CGHP company, Victor Popp had made some successful demonstrations. By 31 December 1880, 14 public candelabra-clocks and 33 clocks in municipal buildings were in use. In addition, 1475 clocks were in use in various establishments (eg banks, theaters and hotels) of the 11th arrondisemont.

A central transmitting station was set up at 7 rue Sainte-Anne, (in the centre of Paris, intersecting the Avenue de l'Opera)from which issued 10 pipes of 27 mm diameter, from which secondary pipes of 6 mm to 20 mm diameter diverged. The air was at the low pressure of 0.75 bar. The demonstrations were convincing, and after a meeting of the Paris City Council on 19th July 1881, on 12th August the Prefect of the Seine authorised the City to enter into a contract with the CGHP.

The clock system closed in 1927, having become unprofitable.

Left: A Popp clock in a Paris street

Where is everybody?

At its maximum extent the system composed approximately 7800 pneumatic clocks in Paris. The Sainte-Anne site had inadequate room for expansion, so a larger station was built in north-eastern Paris on the Rue St Fargeau.
This was later enlarged and became the first usine on the Paris compressed-air power network, which was another thing entirely, though also promoted by Viktor Popp.

Usine is a very handy French word which roughly translates as a place where something is made. It does not quite mean power-station; a room with a diesel generator in it counts as a usine.

Left: Two more Popp clocks at unknown locations in Paris

Once more a clock is combined with a lamppost.

The sign on the rightmost clock means 'Be kind to animals' which was directed at the drivers of horse-drawn vehicles, who in Paris did not have a reputation for consideration towards their animals. Also in this picture a gendarme with his distinctive kepi stands at the foot of the column.

Date unknown, though obviously in the horsedrawn era.
I am however sure about the time- 11 o'clock in the morning.

Left: Multiple-faced Popp clock in the Place de la Madeleine, Paris

The Madeleine is a large church built in classical style; only two of its columns are visible here.

Date of image currently unknown.

The following information in quotes is taken from Popular Science Monthly, Vol 20, January 1882 "Time-Keeping in Paris":

"At a central point a steam-engine drives pumps which compress air to five atmospheres (73 psi) in a reservoir holding eight cubic metres. This compressed air is sent, by means of a special regulator, into a second receiver called the "distributing reservoir," where the pressure is kept constant at seventh tenths of an atmosphere, (10.3 psi) or a little less— a pressure determined empirically to be sufficient to move the dials."

Left: A Distributing clock

"The "distributing reservoir" is opened to transmit an impulse into the pipes each minute, for about twenty seconds, by a distributing clock. This consists of two distinct clock movements. The one to the left, provided with balance-wheel, counter-weights, etc, is simply an ordinary clock, and indicates the hour, minute, and second, as shown in the figure. The movement to the right is contrived especially for moving the distributing valve, R. This valve, ingeniously arranged in such a way that the pressure acts only on a minimum of its surface, is inclosed in a valve-box and has three orifices.

"The first of these puts the valve in communication with the "distributing reservoir"; the second puts it in communication with the street-pipes; and the third puts the pipes in communication with the atmosphere. The first orifice is always open; the other two are normally closed. The automatic escape of the lever G, at the end of each minute, moves the slide-valve, opens the second orifice, and sends an impulse into the pipes; at the end of a number of seconds, determined by experience and dependent on the length of the pipes (a number which varies from ten to fifteen seconds), the slide-valve is brought back to its original position by the clock-work, closes the two orifices, and allows the extra pressure which has been introduced to escape into the air. This operation is repeated every minute.

"The motive-power for the clock-work of both movements is furnished by the compressed air, which automatically lifts the pistons in the cylinders, C, at the end of each minute. The pistons move the levers B and A; the first of these, B, winds up the counter-weights as much as they have fallen during the preceding minute; the second, A, imparts motion to the slide-valve."

I find this description defective. The clock movement on the right is just a timer to control the 10 - 15 second pulse of air when it is triggered by the clock on the left. The duration does not have to be determined very accurately, and so instead of an escapement its speed is regulated by the fly or vane labelled L. The lever A does not impart motion to the slide-valve directly, but winds up the weights of the timer by means of the gear teeth on its right extremity. Engineering (24 June 1881) gives the duration of the air pulse as 20 seconds.

Just above the main clock dial is a seconds dial D. The escape wheel is just behind it; (as revealed in the picture of the Vienna distributing clock) despite the reference to a balance-wheel above it looks very much as if it was a pendulum clock.

Left: The Distributing room

This the distribution room for the Popp network. In the glass case (vitrine) can be seen one of the distribution clocks, as illustrated above. The top of the case is labelled 'Horloge Centrale No 1', though lower down is a label saying 'Reserve' which seems contradictory; if it's the reserve clock, surely it should be called No 2? Presumably the case at the rear contains a second distributing clock. Here the valve is shown as outside the glass case.

The tank on the left is the distributing reservoir. The two dark things next to it that look a bit like coffee-urns are the pressure regulators between the high-pressure reservoir and the distributing reservoir. Note they are in duplicate for reliability, with isolating valves to disconnect a faulty regulator. In the original illustration it is possible to read 'regulateurs du pression' written on the wall just behind them.

I assume that stringent precautions were taken (presumably in the form of safety-valves) to prevent a regulator from failing and allowing the high pressure air to enter the network. This would burst the bellows in each clock and Paris would be treated to the alarming spectacle of 7,800 clocks exploding. Going popp, in fact.

Date of image currently unknown.

Left: The compressed-air plant at rue St Anne

This shows a boiler at left, with a horizontal steam engine mounted on it. This drives by belt a countershaft hidden in a slot in the floor. This shaft drives by belt four Sauter-Lemonnier vertical double-action compressors. Four pipes can be seen leading from the compressors to the high-pressure air reservoir.

According to the diagram of the plant just below, there should have been two boiler-engine assemblies, but only one can be seen here. At the extreme left there seems to be some other sort of horizontal engine.

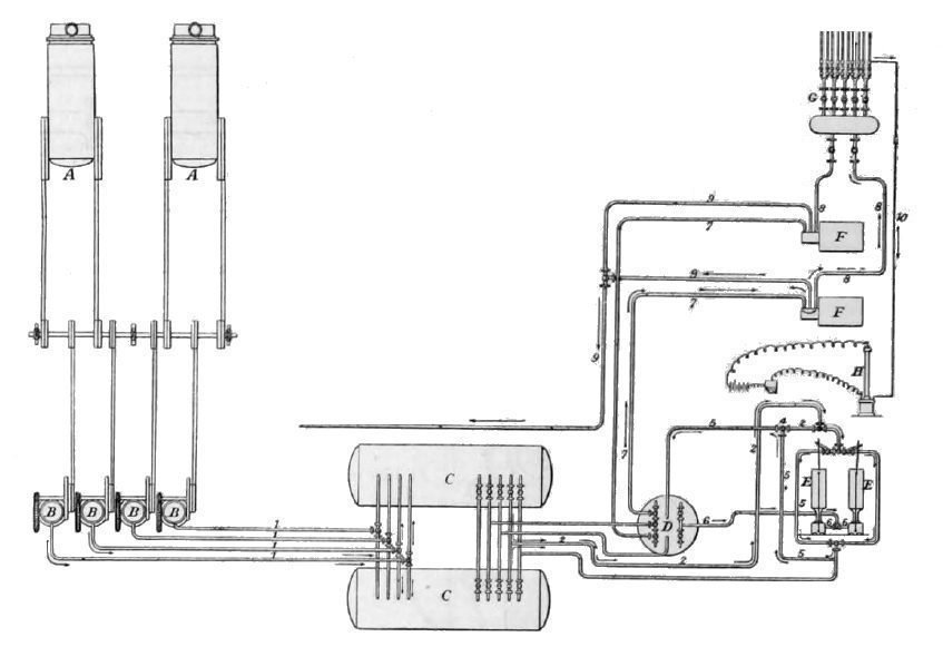
Left: The compressed-air plant at the rue St-Anne

This is an overall diagram of the plant at the rue St-Anne distributing station.

Popp clearly took the reliability of the clock service seriously, with almost all the equipment duplicated or quadruplicated. Nonetheless on one occasion an accident at either St Anne or the later time distributing station at St-Fargeau caused all the Popp clocks to stop at 10:48am until repairs were made. (I have mislaid my reference for this event- if anyone can point me to it I will be grateful)

  • A- Two combined boilers and engines
  • B- Four vertical compressors
  • C- Two high-pressure air reservoirs
  • D- Low-pressure air reservoir
  • E- Two pressure regulators
  • F- Two distributing clocks
  • G- Control valves for different branches of the network
  • H- Pressure switch to indicate air pulse sent by ringing a bell

From Engineering 24 June 1881

Left: The compressed-air plant at the rue St-Anne

This is a diagram of the pressure-regulating plant at the rue St-Anne distributing station. Note that there is a provision for connecting the high pressure air directly to the low-pressure reservoir, by means of valve f. Why you would want to do this I do not know, because as mentioned above I would have thought it would have caused all the clocks to explode.

  • b = High pressure air to pressure regulators
  • d = High pressure air direct to low-pressure reservoir
  • D = Incoming high-pressure air
  • p = Pressure regulators
  • R = Low-pressure reservoir

From Engineering 24 June 1881

Left: One of the pressure regulators at the rue St-Anne

Each regulator consists of a lower closed chamber A and a chamber C open at the top. In chamber C a float E is connected to a tap c shown in the diagram just above. Chamber A is partly filled with mercury and the air pressure admitted at F forces the mercury up into chamber C, raising the float E and closing the controlling tap, shutting off the flow into low-pressure reservoir R.

The tube D is described as a pressure gauge showing the level of the mercury; presumably it was a glass tube. The tap at the bottom could be closed if the tube was broken to minimise the loss of expensive mercury.

From Engineering 24 June 1881

Left: A distributor clock at the rue St-Anne

Compare this drawing with the one above. There are differences in the detail but presumably the same clock was being illustrated. Here we can see more of the internal workings, but it is still not possible to locate the balance-wheel and escapement.

There are three 3-way valves R. In an emergency two of these could be used to isolate the sliding valve, and manual air pulses given by the middle valve R.

If the automatic rewinding failed, causing the main weights to descend too far, an electrical contact rang an alarm bell.

Bottom right at Fig 6 is a section through the sliding valve.

From Engineering 24 June 1881

Left: The distributing valve chest at the rue St-Anne

The air released by the distributing clocks enters at the top of the drawing. The two large valves labelled I and II are linked by spur gearing, so that turning the handle n switches from one distributing clock to the other.

The air goes into chamber c and then splits up into five pipes each controlled by a valve a. Each pipe then splits in two again, with each of the ten pipes controlled by a valve f. This would appear to make the a valves redundant.

Each outlet pipe carried a small valve g (only two are shown here) which allowed air into small-bore pipes, which were connected to pressure gauges and the mercury switch H which rang a bell to indicate each air pulse.

From Engineering 24 June 1881

Going back to Popular Science Monthly:

"The impulse given by the clock-work is distributed through the city by means of pipes laid like ordinary gas-pipes. In the streets the pipes are of iron, and have a diameter of twenty-seven millimetres (about one inch); but in the houses the pipes are of lead, and of different sizes—the diameters being fifteen, six, or three millimetres (practically one half, one quarter, or one eighth of an inch), depending on the number and size of the dials to be operated. These pipes are entirely hidden from view, and in no way interfere with the appearance of the dials."

Left: The mechanism of a Popp pneumatic clock

The Popular Science Monthly tells us:

"A leather or rubber flap, seen in the cylinder, receives the impulse as it comes from the pipe and moves a piston, which acts upon a lever-arm arranged by simple connections to move the minute-hand one space forward. The ordinary clock-gearing (not shown in the figure) secures the proper motion for the hour-hand. This part of the apparatus can be inclosed in any case—as plain or as ornamental as desired. The cases are made in all the designs and sizes of ordinary clocks, and appear precisely like them, except that the minute-hands jump suddenly over one space at the end of each minute, and remain stationary during the minute, instead of moving gradually over the space."

I also find this description faulty. There is no 'flap'; what we have is a bellows in a can, made of soft rubber sections joined by brass rings, which pushes the 60-tooth wheel round by means of a pawl which is weighted to keep it in contact with the wheel. At the left a second weighted pawl prevents the wheel from slipping backwards. Probably the biggest design problem here is the danger of the inertia of the wheel causing it to advance by more than one tooth. There does not seem to be any sort of positive locking to prevent this.

It is interesting that the mechanism uses weights to keep the pawls engaged rather than springs, which would have been more compact. The answer is probably that compactness is of no advantage in a big thing like a public clock, and that weights would be more reliable than springs which might break. Both weights are adjustable in position.

Back to Popular Science Monthly again:

"All the machinery of the system is in duplicate, for use when repairs are needed. Delicate manometers indicate the pressure at all times, and the most approved electric apparatus is used to indicate the particular point at which a defect has occurred. A skilled engineer is on the watch at all times. Provision is also made so that, in case of any interruption in the regulator, the dials may be run by hand. Accuracy of time is secured by daily comparison with the observatory clock."

All very sensible, except that reference to the observatory clock, which must mean it was in the Paris Observatoire (the equivalent of Greenwich Observatory in London) and so some six kilometres away on the other side of the Seine. Investigation was called for...

Left: Electrical time distribution from the Paris Observatoire

The Observatoire can be seen in the lower middle of the map. The Rue St Fargeau is coloured red.

At the Paris Observatoire a high-standard astronomical regulator clock was kept running on correct mean time by astronomical transit observations, being corrected daily. Pulses of electricity were sent every second to secondary clocks around the city, the wires being run through ducts in the sewers. Two loops starting and ending at the Observatoire carried thirteen clocks between them, the farthest being at a distance of seven and a half kilometres, or nearly four and a half miles from the observatory. The clocks were of a high standard, so they could keep good time even if the synchronising pulses failed. (The pulses synchronised the clocks but did not drive them, they were weight-driven in the conventional way) The secondary clocks were furnished with second-hands, and were placed so that they could be easily seen from the street, usually in prominent positions. They further distributed time by sending electric signals once an hour to synchronise various public clocks. The system came into operation in 1878.

The secondary regulator at the Hotel de Ville sent synchronising pulses once an hour to the twenty mairies of Paris, over the telegraph circuits connecting them. (A mairie is roughly equivalent to a borough town hall in London) The nearest to St Fargeau is the mairie of the 20th arrondisment, just to the east of the Pere Lachaise cemetery. This is still some 700 metres away, and I am left wondering how the time covered that last step. Given the short distance, carrying a good pocket watch between the mairie and the distribution centre would have been practical.

The secondary regulator at the Hotel de Ville sent synchronising pulses once an hour to the twenty mairies of Paris. (A mairie is roughly equivalent to a borough town hall in London) The nearest mairie to St Fargeau is the mairie of the 20th arrondisment, just to the east of the Pere Lachaise cemetery.

Back to Popular Science Monthly again:

"Excellent as the system is for general uses, the pneumatic dials can not be used for accurate time-work, because it requires in the extreme case, namely, for a distance of twenty thousand metres, at least ten seconds for the impulse to reach its destination. Thus it will be seen that each dial is slow a certain number of seconds, depending upon its distance from the central station; nor has it been found that the error of any particular dial is constant. But the error will never be allowed to exceed ten seconds. Should the extension of the system require it, Paris will be divided into six districts (surveyed so that no point in the city shall be over twenty thousand metres from a central station), each provided with its central station equipped in other respects as the one described, but all receiving their compressed air from a common reservoir centrally located."

The time delay was something I had wondered about when I first heard of this system. Obviously the ultimate limit to the delay is the speed of sound. Assuming the Paris sewers were at 15 degC, the speed of sound would be 343 m/sec, and a pressure difference could not be transmitted 20 km in less than 58 seconds. Something wrong here, I think.

Back to Popular Science Monthly again:

"However, there are plenty of people in Paris, as there are, doubtless, in every city, for whom a time even ten seconds in error is accurate enough. The system was put into operation there about March 15, 1880, and in the first four months there were fifteen hundred subscribers, distributed in six hundred houses. The popularity of the pneumatic clocks is due to their convenience and cheapness. The rental is only five centimes (one cent) per day for the first clock; four centimes (eight mills) per day for the second clock; three centimes (six mills) per day for the third and every subsequent clock rented by the same person; and the expense of pipes and apparatus is borne by the company."


OTHER FRENCH PNEUMATIC CLOCKS

Left: A Collin & Wagner Horloge mère clock

The company of Collin & Wagner was prominent in making turret clocks for churches, etc. This is what in England would be called a master clock, distributing time to slave clocks. The French refer to these rather more delicately as an Horloge mère (mother clock) and horloges filles. (daughter clocks) The cylinder on top is an air pump which impulses the daughter clocks, powering them from its own weight drive rather than controlling externally supplied compressed air. There is also a pair of electrical contacts at the front, visible just above the winding square.

The brass plate on the front carries this inscription: "Ce mécanisme fait mouvoir les aiguilles des Grands et Petits Cadrans du Casino par le système de transmission à Air comprimé de Collin Sucr de Wagner, 118 rue Montmartre à Paris". Google Translate renders this as "This mechanism moves the hands of the large and small Dials of the Casino by the compressed air transmission system of Collin successor of Wagner, 118 rue Montmartre in Paris." Collin appears to have bought Wagner's business.

On the pump body is written: "Moteur Air comprimé Collin Breveté S.G.D.G. [G0097]" A brevet is a French patent; this appears to have been taken out in 1865.

As far as the Museum Staff can discover at present, this system was purely a local one suitable for operation in one building, and there is so far no suggestion that there was another public network competing with Popp's.

Left: A Collin & Wagner label

There is more info on Collin here, but it gives very little detail on Collin's pneumatic system..

Back to Home PageBack to The Museum EntranceTop of this page